Solicită o ofertă

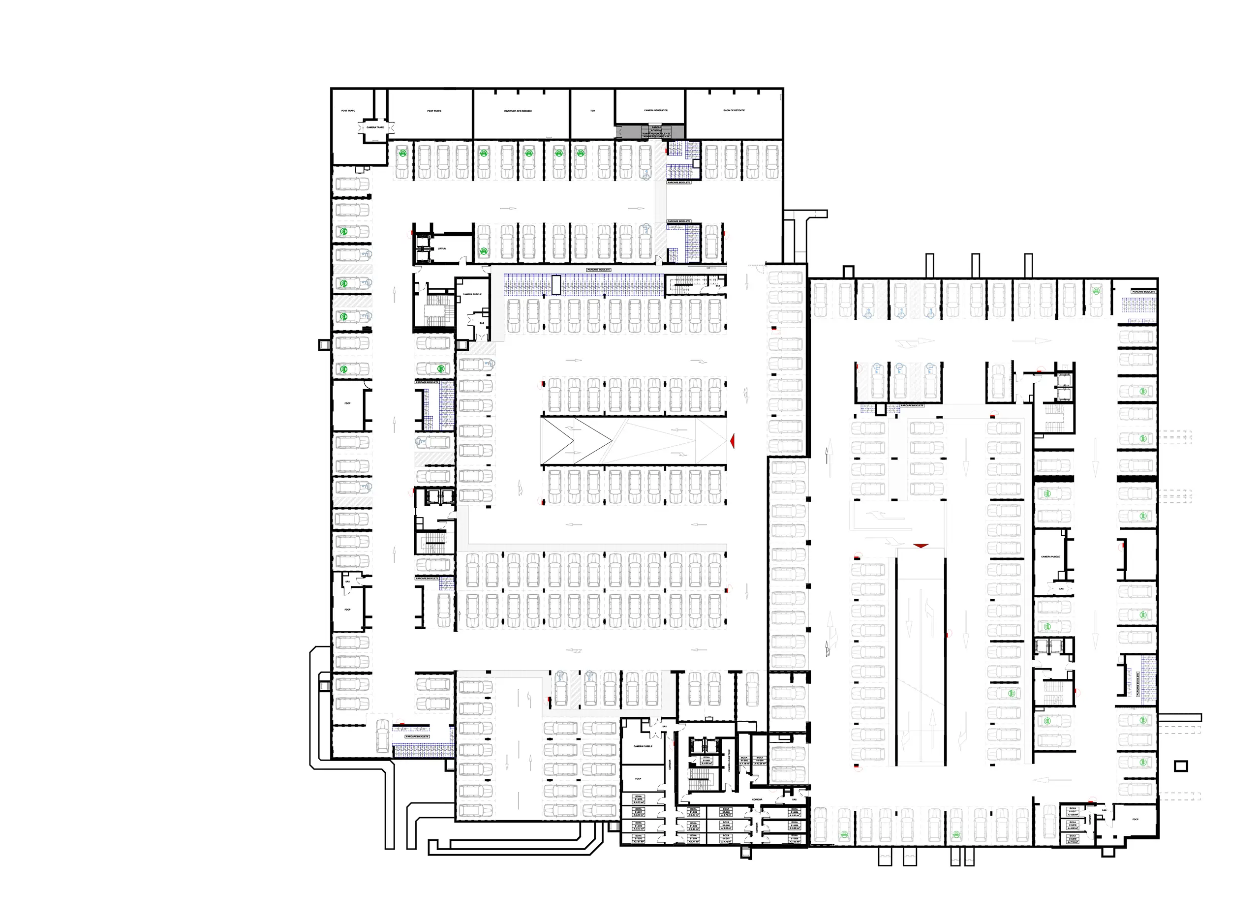
Subsol 1